GREENY MOUNTAIN RETREAT
The Greeny Mountain Retreat is a beautifully designed vacation home that harmoniously blends comfort, sustainability, and accessibility for the family and their elderly parents. Situated amidst stunning mountain views, this retreat serves as a personal getaway and a rental property that embraces eco-friendly living.
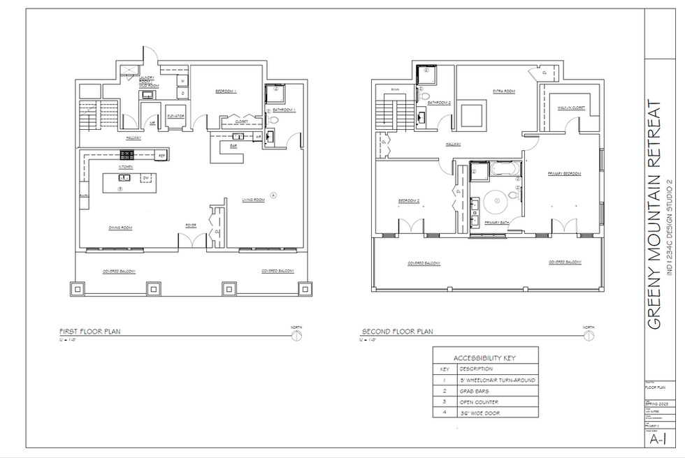
In the design process, I prioritized creating an inviting and functional space that caters to the family's needs. To ensure accessibility, I incorporated wider doorways and strategically placed grab bars in bathrooms, making it easier for Mr. Greeny's parents to navigate the home. The layout promoted a seamless flow between the open-concept kitchen and dining area, perfect for entertaining guests and family gatherings.
Sustainability was a key focus; I selected materials that are both durable and eco-conscious. Energy-efficient appliances and fixtures were integrated throughout the home to minimize environmental impact. I also included features such as animal-proof storage solutions and child-safe elements, ensuring that wildlife and younger guests are protected.
The great room, designed for relaxation and socializing, features ample seating and large windows that bring the outdoors in, fostering a strong connection to the natural landscape. Outdoor spaces were thoughtfuly designed to enhance the experience of the mountain setting while being safe for children and pets.
Through careful planning and design, the Greeny Mountain Retreat stands as a testament to family values, sustainable living, and a love for nature, offering a welcoming haven for both the Greeny family and future guests.


























